GRANOZZO - CASA INDIPENDENTE
Italiano
179.000 €

GRANOZZO - CASA INDIPENDENTE

Casa singola in vendita • Granozzo con Monticello - Via Mtteotti, 9
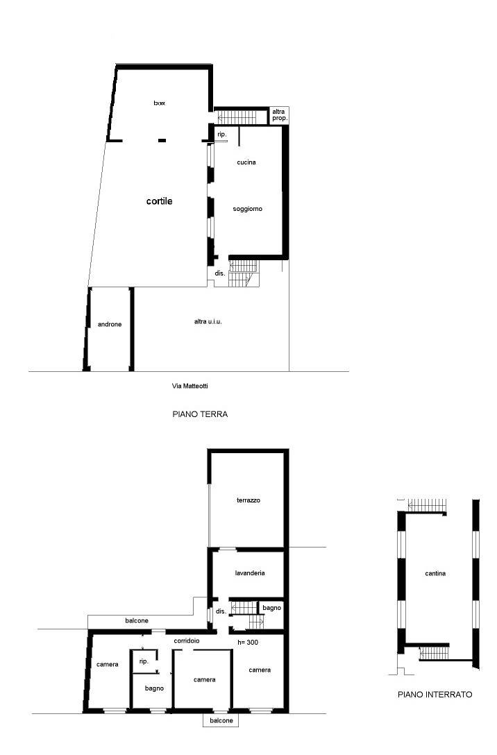
Casa indipendente disposta su due livelli con cortile, autorimessa doppia e ampio terrazzo. Alla proprietà si accede tramite androne carraio, entrati nel cortile troviamo l'ingresso dell'abitazione e l'autorimessa doppia. Al piano terra dell'abitazione si sviluppa la zona giorno con ampio salone, cucina a vista e ripostiglio. Al primo piano ci sono quattro ampie camere di cui una adibita a lavanderia, due bagni e terrazzo di generose dimensioni. Al piano seminterrato l'ampia cantina.

Consorzio Immobiliare
Corso Risorgimento 88 B, Novara
e-mail: risorgimento@consorzioimmobiliare.com
tel. 0321 622450
Cell. 3482284026
Caratteristiche principali
Codice
sgrosa
Città
Granozzo con Monticello
Categoria
Casa singola
Prezzo
179.000 €
Locali
5
Camere
4
Bagni
2
Mq
228
Box
2
Mq Box
25
Posti auto
3
Balconi
2
Mq Balcone
10
Terrazzi
1
mq Terrazzo
46
Classe energetica
D
144,69
Stato Immobile
Ottimo
Grado
Medio
Orientamento
Ovest Est
Lati Liberi
3
Giardino
Cortile
Tipo Soggiorno
Salone
Tipo Cucina
A Vista
Riscaldamento
Autonomo
Tipo Riscaldam.
Caldaia a Condensazione
Tipo Impianto
Radiatori
Fonte Energetica
Metano
Acqua Calda
Autonoma
Raffrescamento
Split
Infissi
Alluminio Doppio Vetro
Serramenti
Ottimo
Persiana
Tapparella PVC
Pavim. Giorno
Ceramica
Pavim. Notte
Ceramica
Pavim. Cucina
Ceramica
Pavim. Bagno
Ceramica

Accessori: Aria Condizionata, Cancello Elettrico, Doppi Vetri, Ripostiglio, Zanzariere

Mappa
Via Mtteotti 9, Granozzo con Monticello (NO)
Condividi su
Cookie preference